查看: 970|回复: 10

[济宁资讯] 高新.帝景位置怎么样?

[复制链接]
发表于 2021-10-21 18:09:01 来自手机 |未经授权,严禁转载,违者必究... | 显示全部楼层 |阅读模式
 
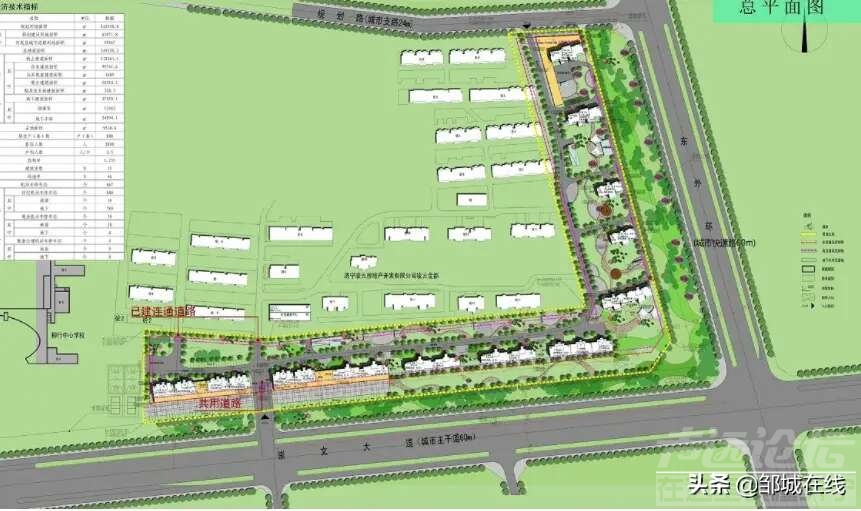
未来有投资潜力吗?听说沿着崇文大道,位置行吗?
front2_0_621347_FjX9aY0MkCvELeXdJrnmhXogY9oC.1634810939_18_09_00.jpg
 
 
发表于 2021-10-21 18:10:25 来自手机 | 显示全部楼层
 
你不是就在那附近住吗?未来好不好你心里没数吗?天天装蒜,刷流量,有意思吗?
 
 
回复 支持 反对

使用道具 举报

 楼主| 发表于 2021-10-21 18:11:32 来自手机 | 显示全部楼层
 
吃虾企鹅 发表于 2021-10-21 18:10
你不是就在那附近住吗?未来好不好你心里没数吗?天天装蒜,刷流量,有意思吗?
...

我觉得可能太主观了,听听大家的意见嘛。
 
 
回复 支持 反对

使用道具 举报

发表于 2021-10-21 18:13:12 来自手机 | 显示全部楼层
 
吃虾企鹅 发表于 2021-10-21 18:10
你不是就在那附近住吗?未来好不好你心里没数吗?天天装蒜,刷流量,有意思吗?
...

不允许对四哥不敬
 
 
回复 支持 反对

使用道具 举报

发表于 2021-10-21 18:17:13 来自手机 | 显示全部楼层
 
四哥先弄个媳妇


 
 
回复 支持 反对

使用道具 举报

发表于 2021-10-21 18:19:00 | 显示全部楼层
买就完了,管他在哪里,买到就是赚到,过五年,翻一番卖出去就行
回复 支持 反对

使用道具 举报

 楼主| 发表于 2021-10-21 18:21:11 来自手机 | 显示全部楼层
 
声远论坛摊主 发表于 2021-10-21 18:19
买就完了,管他在哪里,买到就是赚到,过五年,翻一番卖出去就行

白搭,万一房价不涨了,或者下跌了呢?谁说的好。
 
 
回复 支持 反对

使用道具 举报

发表于 2021-10-21 18:22:00 | 显示全部楼层
崇文名都topone 发表于 2021-10-21 18:21
白搭,万一房价不涨了,或者下跌了呢?谁说的好。

放心,绝对不降的。今年不买,等着明年后悔吧。
回复 支持 反对

使用道具 举报

发表于 2021-10-21 18:22:42 | 显示全部楼层
怕啥。
手里有4套房。
别管房价涨不涨。
房租是月月到手的现钱。
回复 支持 反对

使用道具 举报

 楼主| 发表于 2021-10-21 19:07:24 来自手机 | 显示全部楼层
 
济宁秀水城 发表于 2021-10-21 18:22
怕啥。
手里有4套房。
别管房价涨不涨。

怕?我有啥好怕的,现在天王老子,我也不怕。
 
 
回复 支持 反对

使用道具 举报

发表于 2021-10-21 19:23:17 来自手机 | 显示全部楼层
 
崇文名都topone 发表于 2021-10-21 19:07
怕?我有啥好怕的,现在天王老子,我也不怕。

完美的诠释了什么叫无知者无畏
 
 
回复 支持 反对

使用道具 举报

您需要登录后才可以回帖 登录 | 加入声远

本版积分规则

返回顶部快速回复上一主题下一主题返回列表

声远论坛|联系电话:0537-2311005|Archiver|手机版|小黑屋|Sitemap|声远网 |网站地图|网站地图

鲁公网安备 37089702000485号 | 鲁ICP备 18028751号 | 互联网药品信息服务资格证:(鲁)-经营性-2022-0209 | 增值电信业务经营许可证:鲁B2-20230761号 | (鲁)职介证字[223]:第08120014号

中国互联网违法和不良信息举报中心 | 山东省互联网违法和不良信息举报中心 | 人工智能生成合成内容标识办法

GMT+8, 2026-5-17 07:03, Processed in 0.069719 second(s), 26 queries , Gzip On, APCu On.

Powered by Discuz! X3.5© 2001-2026 SYUAN.COM

快速回复 返回顶部 返回列表