查看: 1737|回复: 18

[济宁资讯] 占地约17.55亩!济宁城区北部再添一商务中心项目

  [复制链接]
发表于 2025-6-13 21:15:55 来自手机 |未经授权,严禁转载,违者必究... | 显示全部楼层 |阅读模式
 
济宁城北再迎一商业项目!济州发展商务中心项目建设工程设计方案及建设工程规划发布批前公告,具体内容如下:
20250613211513front2_0_68307_FiGYMiSKQkB7dD7HIwRGT9TqPKvN.jpg
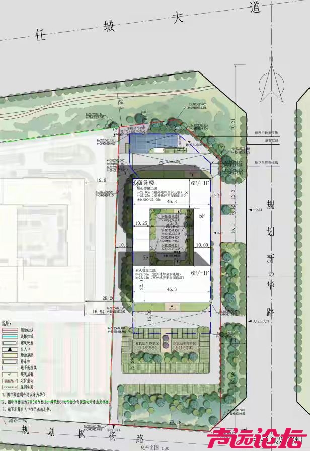
总平面图

工程概述

项目名称:济州发展商务中心

建设单位:济宁城市发展资本控股有限公司

项目位置:北邻任城大道,东邻新华路

主要技术经济指标

规划用地面积:1.17公顷(约17.55亩)

总建筑面积:20089.48㎡

地上建筑面积:15040.32㎡

地下建筑面积:5049.16㎡

容积率:1.36

建筑密度:22.84%

绿化率:20.54%

建筑类型:商务楼、配套设施等

停车设施:规划有机动车停车位151个,非机动车停车位452个
20250613211540front2_0_68307_FrFrp1qM1BYJuhEzfr99pqylWDZd.jpg
20250613211540front2_0_68307_FvZuDKEWtlpSxDfN3Ec4kvB_8bdq.jpg
20250613211540front2_0_68307_Fue50YW14P8p23u4Sve26jO84PyN.jpg
20250613211540front2_0_68307_Fm14N6z0RXsII7xkA0VyQIerjkJc.jpg
20250613211540front2_0_68307_FinNoz0p5B3-_1CMC4ItE0qhAwwn.jpg
 
 
— 大济宁 APP 点赞记录
点赞给态度,登录/注册 就能点赞
建功业立 2025-6-15 04:53 威望 +2
須彌芥子 2025-6-14 21:19 威望 +2
济水之恋 2025-6-14 13:41 威望 +2
波波贝尔 2025-6-14 12:07 威望 +2
一颗小芋袁 2025-6-14 12:06 威望 +2
[孟]恋约前生 2025-6-14 06:07 威望 +2
小丑鱼8 2025-6-14 04:51 威望 +2
胖悟空 2025-6-13 22:23 威望 +2
 楼主| 发表于 2025-6-14 08:16:32 来自手机 | 显示全部楼层
 
感觉楼有点矮
 
 
本帖点赞记录
点赞给态度,登录/注册 就能点赞
玉树临癫疯 威望 +2
回复 支持 1 反对 0

使用道具 举报

发表于 2025-6-13 22:32:07 来自手机 | 显示全部楼层
 
路还没通来
 
 
本帖点赞记录
点赞给态度,登录/注册 就能点赞
玉树临癫疯 威望 +2
回复 支持 1 反对 0

使用道具 举报

发表于 2025-6-13 21:54:17 来自手机 | 显示全部楼层
 
说了不算。
 
 
回复

使用道具 举报

发表于 2025-6-13 22:21:25 | 显示全部楼层
副高那?
回复

使用道具 举报

发表于 2025-6-13 23:09:51 来自手机 | 显示全部楼层
城西北总算有点商业了,不知两年能建好了吧
回复 支持 反对

使用道具 举报

发表于 2025-6-14 00:56:38 来自手机 | 显示全部楼层
 
花钱为你好的一万种理由
到处都建,人口撑不起这么多商业体
 
 
回复 支持 反对

使用道具 举报

发表于 2025-6-14 06:08:37 来自手机 | 显示全部楼层
 
 
 
回复 支持 反对

使用道具 举报

发表于 2025-6-14 08:45:02 | 显示全部楼层

哈哈,路往北要通的节奏
回复 支持 反对

使用道具 举报

发表于 2025-6-14 10:23:21 来自手机 | 显示全部楼层
 
任城区的国企
 
 
回复 支持 反对

使用道具 举报

发表于 2025-6-14 10:31:40 | 显示全部楼层
这是准备吸引农村人消费的吧。
回复 支持 反对

使用道具 举报

发表于 2025-6-14 10:49:11 来自手机 | 显示全部楼层
 
济水之恋 发表于 2025-6-13 23:09
城西北总算有点商业了,不知两年能建好了吧

这一小栋楼,成不了啥大气候
 
 
回复 支持 反对

使用道具 举报

发表于 2025-6-14 11:00:23 来自手机 | 显示全部楼层
济水之恋 发表于 2025-6-13 23:09
城西北总算有点商业了,不知两年能建好了吧

商务,看好了,就是写字楼一类的!不是商业!万达那才叫商业……
回复 支持 反对

使用道具 举报

发表于 2025-6-14 11:49:13 来自手机 | 显示全部楼层
 
济北的铜锣湾呢
 
 
回复 支持 反对

使用道具 举报

发表于 2025-6-14 14:19:22 来自手机 | 显示全部楼层
梁山山 发表于 2025-6-14 11:49
济北的铜锣湾呢

三年了,没有任何动静,你觉得呢?这个铜锣湾,在济宁市,北湖,高新,任城等都考查签约过,就没有实质性的进展!估计皮包公司的面大
回复 支持 反对

使用道具 举报

发表于 2025-6-14 19:21:53 来自手机 | 显示全部楼层
 

西北风吹跑了…
 
 
回复 支持 反对

使用道具 举报

发表于 2025-6-15 00:08:12 来自手机 | 显示全部楼层
 
先占个好位置
 
 
回复 支持 反对

使用道具 举报

发表于 2025-6-15 06:17:59 来自手机 | 显示全部楼层
 
丁字路口
 
 
回复

使用道具 举报

发表于 2025-6-15 07:05:26 来自手机 | 显示全部楼层
 
比亿丰还偏僻
 
 
回复 支持 反对

使用道具 举报

您需要登录后才可以回帖 登录 | 加入声远

本版积分规则

返回顶部快速回复上一主题下一主题返回列表

声远论坛|联系电话:0537-2311005|Archiver|手机版|小黑屋|Sitemap|声远网 |网站地图|网站地图

鲁公网安备 37089702000485号 | 鲁ICP备 18028751号 | 互联网药品信息服务资格证:(鲁)-经营性-2022-0209 | 增值电信业务经营许可证:鲁B2-20230761号 | (鲁)职介证字[223]:第08120014号

中国互联网违法和不良信息举报中心 | 山东省互联网违法和不良信息举报中心 | 人工智能生成合成内容标识办法

GMT+8, 2026-4-24 23:51, Processed in 0.177317 second(s), 30 queries , Gzip On, APCu On.

Powered by Discuz! X3.5© 2001-2026 SYUAN.COM

快速回复 返回顶部 返回列表