查看: 1340|回复: 10

[济宁资讯] 占地22亩!任城区一回迁安置项目获批

[复制链接]
发表于 2021-1-18 09:55:14 |未经授权,严禁转载,违者必究... | 显示全部楼层 |阅读模式
任城区新添棚改回迁住宅项目!近日,搜狐新闻·搜狐焦点济宁小编在相关渠道获悉,济宁市任城区长沟镇前陈社区回迁安置项目的规划及建筑方案、建设工程规划许可获批前公示,具体参数如下。

占地22亩!任城区一回迁安置项目获批-1.jpg

总平面图

工程概况项目名称:济宁市任城区长沟镇前陈社区回迁安置项目建设单位:山东仁城铁路工程有限公司项目位置:任城区长沟镇阁后街以北,桥子路以西

主要技术经济指标

地块规划总建设用地1.482公顷(约22亩);总建筑面积:14258㎡;其中地上建筑面积为14068㎡、地下建筑面积为190㎡;容积率为1.36;建筑密度26.61%;绿地率30.78%;计划居住户(套)数为84户(套),居住人数约278人(按3.2人/户预算);建筑类型包括住宅、商业、公共服务设施等;规划机动车停车位51个,非机动车停车位84个。

占地22亩!任城区一回迁安置项目获批-2.jpg

日照分析图

占地22亩!任城区一回迁安置项目获批-3.jpg
占地22亩!任城区一回迁安置项目获批-4.jpg
占地22亩!任城区一回迁安置项目获批-5.jpg
占地22亩!任城区一回迁安置项目获批-6.jpg

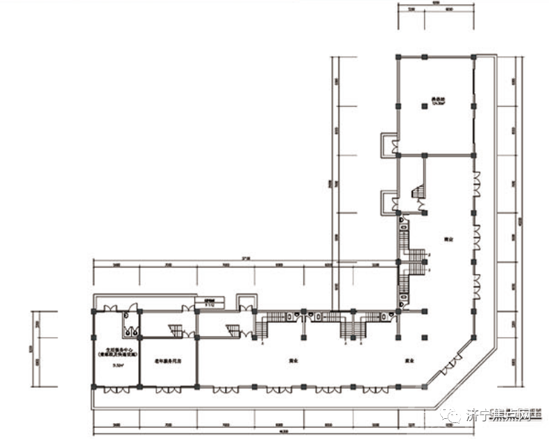
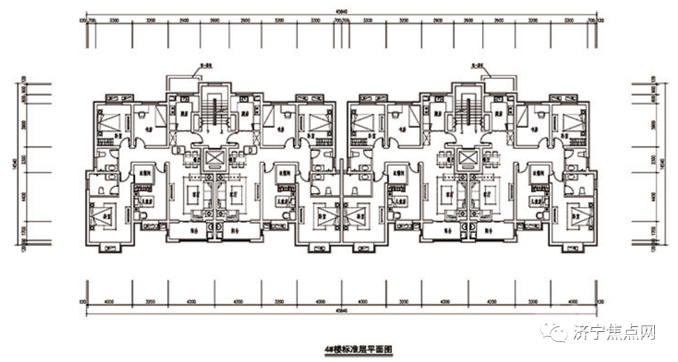
主要平面图

占地22亩!任城区一回迁安置项目获批-7.jpg
占地22亩!任城区一回迁安置项目获批-8.jpg
占地22亩!任城区一回迁安置项目获批-9.jpg
占地22亩!任城区一回迁安置项目获批-10.jpg

立面图、剖面图

占地22亩!任城区一回迁安置项目获批-11.jpg

鸟瞰图

占地22亩!任城区一回迁安置项目获批-12.jpg

发表于 2021-1-18 10:08:03 | 显示全部楼层
还不孬来
回复

使用道具 举报

发表于 2021-1-18 10:08:15 | 显示全部楼层
就这三排楼,
回复 支持 反对

使用道具 举报

发表于 2021-1-18 10:08:33 | 显示全部楼层
现在的小区安置还不孬来
回复 支持 反对

使用道具 举报

发表于 2021-1-18 10:08:40 | 显示全部楼层
好着来
回复

使用道具 举报

发表于 2021-1-18 10:08:54 | 显示全部楼层
不多盖点
回复

使用道具 举报

发表于 2021-1-18 10:33:51 | 显示全部楼层
位置不好
回复

使用道具 举报

发表于 2021-1-18 15:34:12 来自手机 | 显示全部楼层
 
还有电梯
 
 
回复

使用道具 举报

发表于 2021-1-18 20:42:46 来自手机 | 显示全部楼层
提示: 作者被禁止或删除 内容自动屏蔽
回复

使用道具 举报

发表于 2021-1-18 22:39:47 来自手机 | 显示全部楼层
 
长沟人的名声不是很好,外地的公司不好落落
 
 
回复 支持 反对

使用道具 举报

发表于 2021-1-19 01:50:56 来自手机 | 显示全部楼层
 
别这么说,哪里都有害群之马,现在真比从前强多了
 
 
回复 支持 反对

使用道具 举报

您需要登录后才可以回帖 登录 | 加入声远

本版积分规则

返回顶部快速回复上一主题下一主题返回列表

声远论坛|联系电话:0537-2311005|Archiver|手机版|小黑屋|Sitemap|声远网 |网站地图|网站地图

鲁公网安备 37089702000485号 | 鲁ICP备 18028751号 | 互联网药品信息服务资格证:(鲁)-经营性-2022-0209 | 增值电信业务经营许可证:鲁B2-20230761号 | (鲁)职介证字[223]:第08120014号

中国互联网违法和不良信息举报中心 | 山东省互联网违法和不良信息举报中心 | 人工智能生成合成内容标识办法

GMT+8, 2026-4-18 14:51, Processed in 0.179773 second(s), 26 queries , Gzip On, APCu On.

Powered by Discuz! X3.5© 2001-2026 SYUAN.COM

快速回复 返回顶部 返回列表